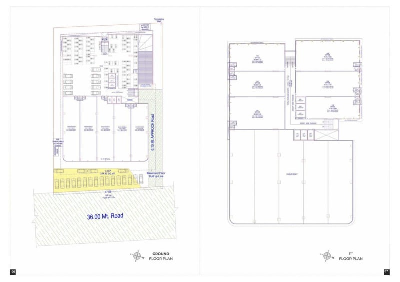
White House is a commercial real estate project developed by Sparkle Buildtech Llp, strategically located at Block No.66/paikee 1 & 66/paikee/2, Final T.p.s.no -35 ( Katargam), O.p No -64 &65,f.p No-84+85 ,, Paikee Sub Plot-01, Moje-katargam, Taluka- Katargam, Dis- Surat., Surat, 395004. This RERA-registered property (Registration No: PR/GJ/SURAT/SURAT CITY/Surat Municipal Corporation/CAA16429/060226/311228). Commercial Project
The project is professionally designed by Bhumi Chimanbhai Aghera and engineered by Jay Jitendrabhai Kasodariya, ensuring quality construction and adherence to all regulatory standards. For more information about this property, interested buyers can contact Sparkle Buildtech Llp directly at 9016399998.












