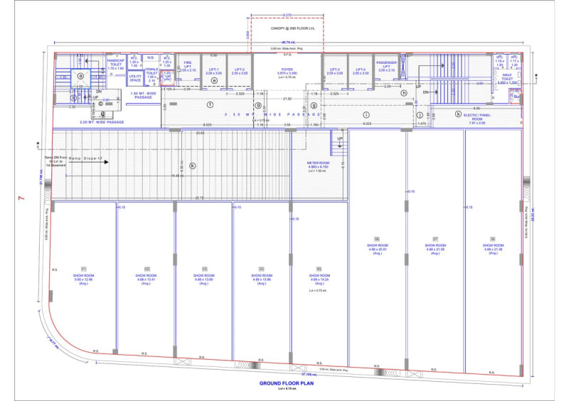
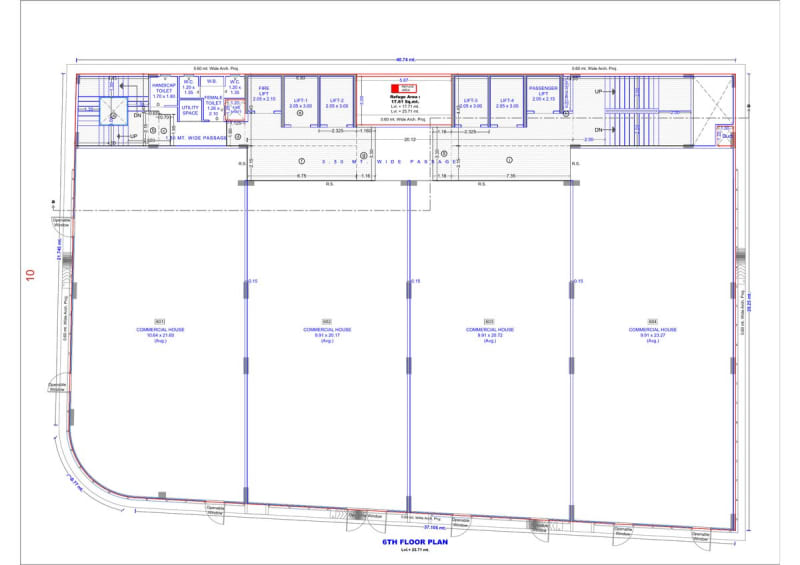
Rajhans Medicrest is a commercial real estate project developed by Rajhans Infracon (India) Private Limited, strategically located at R.s. No:- 395/2, O.p. No: - 82, F.p No:-82/2, At Preliminary T.p.s. No: - 29 (Rundh-vesu-magdalla), Moje: Vesu, Ta: Majura, Dist: - Surat, Surat, 395007. This RERA-registered property (Registration No: PR/GJ/SURAT/SURAT CITY/Surat Municipal Corporation/CAA16488/190226/311231). Only 36 Commerical Unit
The project is professionally designed by Krishnapalsinh Bhupendrasinh Gohel and engineered by Lalitkumar Mohanlal Kheni, ensuring quality construction and adherence to all regulatory standards. For more information about this property, interested buyers can contact Rajhans Infracon (India) Private Limited directly at 9824253843.















