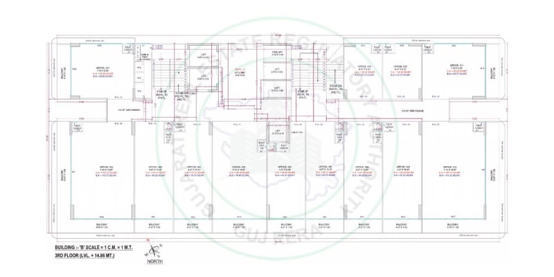
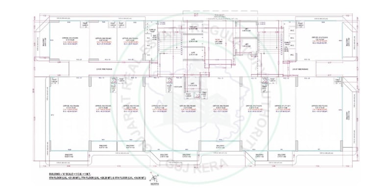
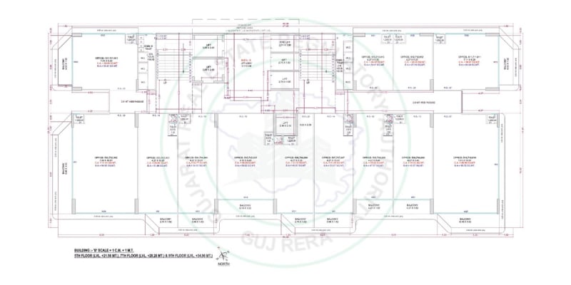
Pratishtha Trade Center is a commercial real estate project developed by Pratishtha Developers, strategically located at Sub Plot No.4, Final Plot.239, Tp No.84, Block No.58a, Nr Prism Luxuria, Ring Road,abrama, Surat, 394101. This RERA-registered property (Registration No: PR/GJ/SURAT/CHORYASI/Surat Municipal Corporation/CAA15955/061025/311230). Commercial Showrooms,shops And Offices
The project is professionally designed by Jigneshkumar Govindbhai Uchadadiya and engineered by Jignesh Ishwarbhai Patel, ensuring quality construction and adherence to all regulatory standards. For more information about this property, interested buyers can contact Pratishtha Developers directly at 9925625254.






















