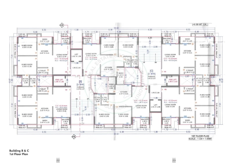
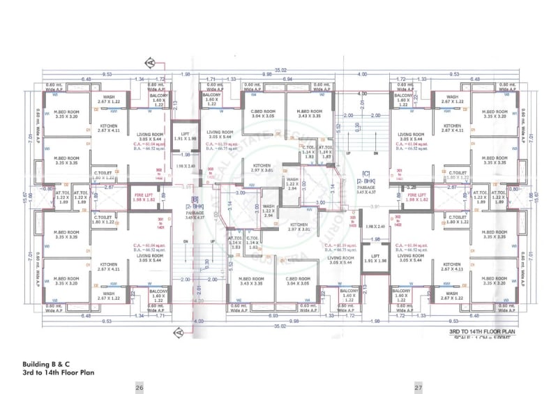
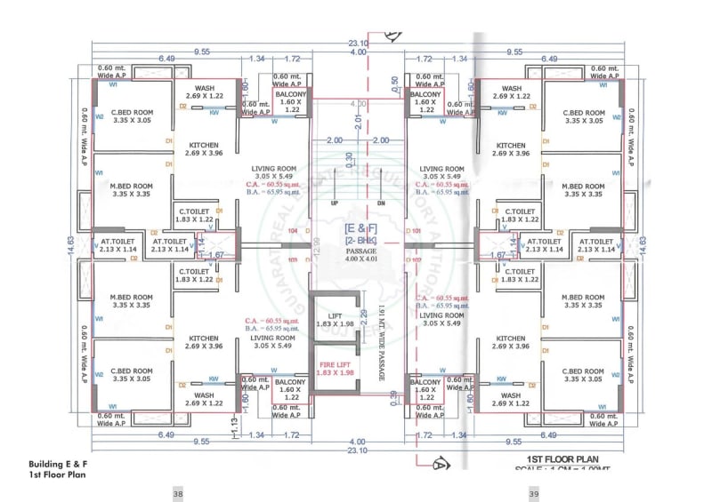
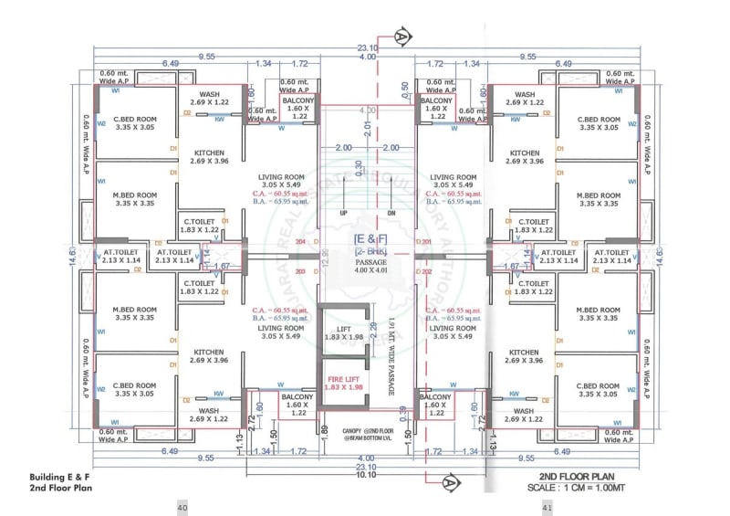
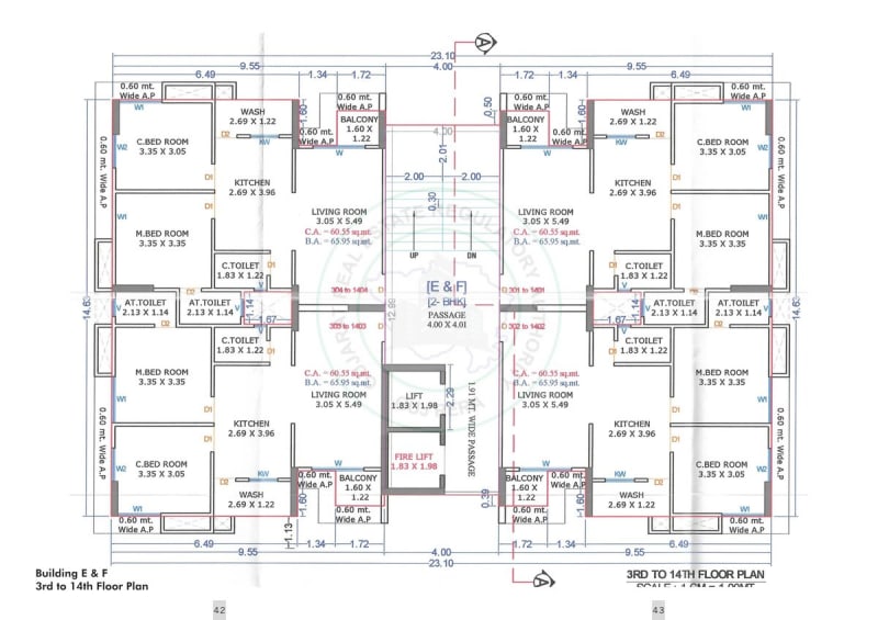
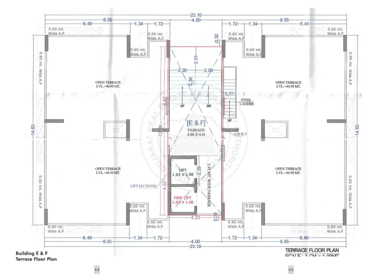
Nand Heights is a residential/group housing real estate project developed by Manmohan Enterprise, strategically located at City Survey No. Na259/2, Block No. 259, Tps 86 (Kosad), Fp 132/b, Bh. Silvasa Bunglows, Kosad, Surat., Surat, 394107. This RERA-registered property (Registration No: PR/GJ/SURAT/SURAT CITY/Surat Municipal Corporation/RAA16557/070326/311233). Residential Flats
The project is professionally designed by Jitaxi Vinodbhai Virani and engineered by Abhishek Arvindbhai Dhanani, ensuring quality construction and adherence to all regulatory standards. For more information about this property, interested buyers can contact Manmohan Enterprise directly at 9925433541.



























