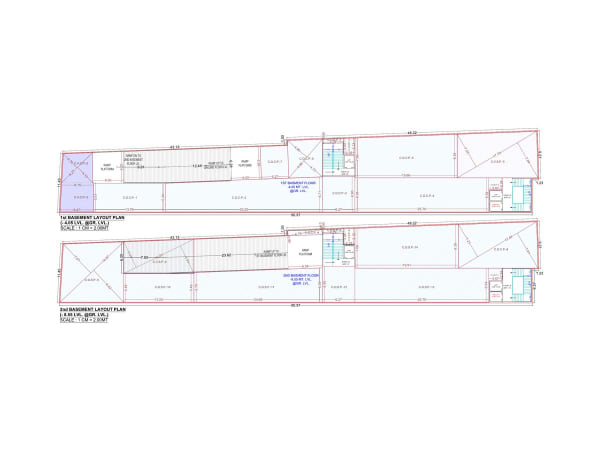
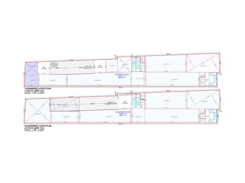
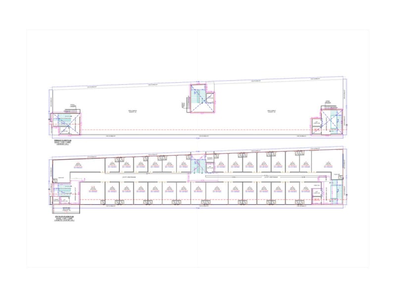
Innovation Hub is a commercial real estate project developed by Chitrakutt Space Creator Private Limited, strategically located at Block No. 148/b, Tp No.27 (Utran - Kosad), Fp No. 54, Moje. Utran, Tal.katargam, Surat, 394105. This RERA-registered property (Registration No: PR/GJ/SURAT/SURAT CITY/Surat Municipal Corporation/CAA16422/030226/311229). Commercial Building
The project is professionally designed by Jitaxi Vinodbhai Virani and engineered by Abhishek Arvindbhai Dhanani, ensuring quality construction and adherence to all regulatory standards. For more information about this property, interested buyers can contact Chitrakutt Space Creator Private Limited directly at 9376087649.







