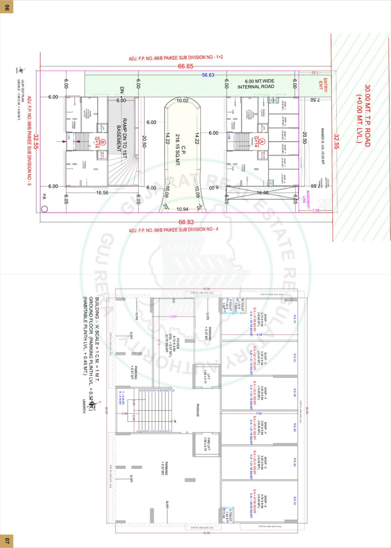
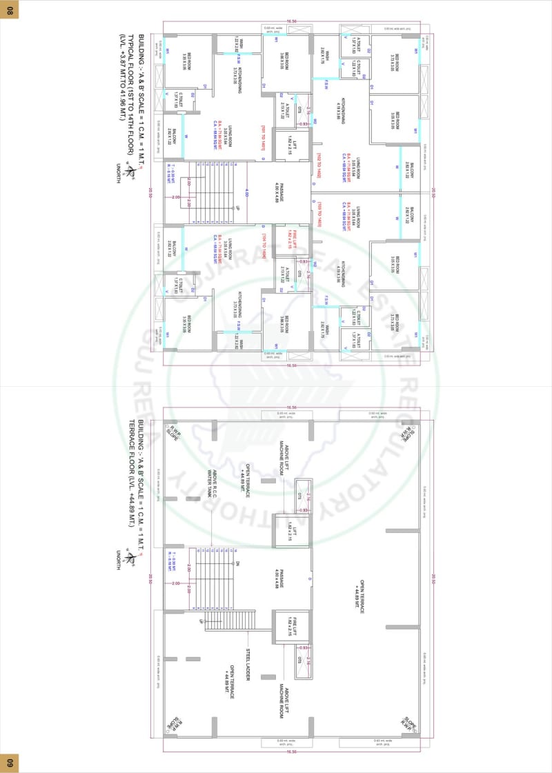
Hillom Pratishtha is a mixed development real estate project developed by Om Developers, strategically located at Block No.442/b, Fp No.98/b,sub Plot No.3,tp No.84 , Opp. Vedant Soliter , Nr. 300 Ft. Ring Road , , Mota Varachha, Tal: Abrama, Surat, 394101. This RERA-registered property (Registration No: PR/GJ/SURAT/CHORYASI/Surat Municipal Corporation/MAA16374/220126/311229). 2bhk Harmonious Living & Shops
The project is professionally designed by Jigneshkumar Govindbhai Uchadadiya and engineered by Keyur Rajubhai Tejani, ensuring quality construction and adherence to all regulatory standards. For more information about this property, interested buyers can contact Om Developers directly at 8238072000.










