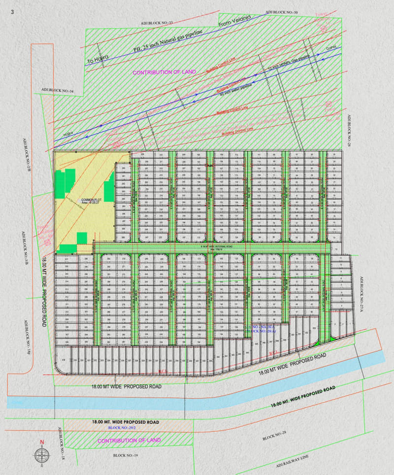
Gruham City Palace is a plotted development real estate project developed by Gruham Luxaria Llp, strategically located at Block No:-29/1, 29/2 & Ward: Vihel (Binkheti), C.s.no:-na28/a , Moje :- Vihel, , Ta: Adajan, Dist.:- Surat.:395009, Surat, 395009. This RERA-registered property (Registration No: PR/GJ/SURAT/SURAT CITY/Surat Municipal Corporation/PAA16559/090326/311229). Plotted Development
The project is professionally designed by Swati Butani Swati and engineered by Khushbu Mohanbhai Patel, ensuring quality construction and adherence to all regulatory standards. For more information about this property, interested buyers can contact Gruham Luxaria Llp directly at 7211165652.








