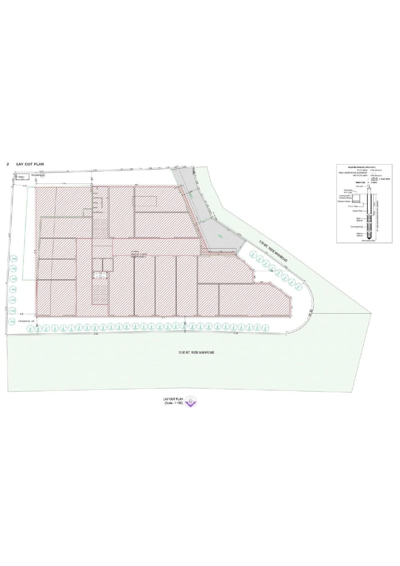
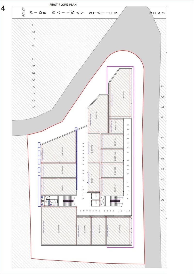
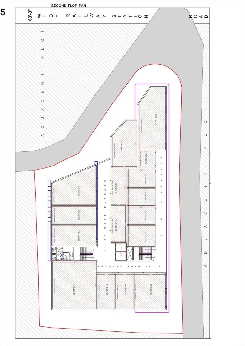
Br Square is a commercial real estate project developed by Dharmraj Corporation, strategically located at Cts No 4725 T.p. No 1 O.p.no178/2 F.p. No 288, Station Road Bardoli, Surat, 394601. This RERA-registered property (Registration No: PR/GJ/SURAT/BARDOLI/Bardoli Municipality/CAA14583/261224/311228). Shop
The project is professionally designed by Bhavin P. Patel and engineered by Vyom Bhaskarkumar Pathak, ensuring quality construction and adherence to all regulatory standards. For more information about this property, interested buyers can contact Dharmraj Corporation directly at 9898041003.












