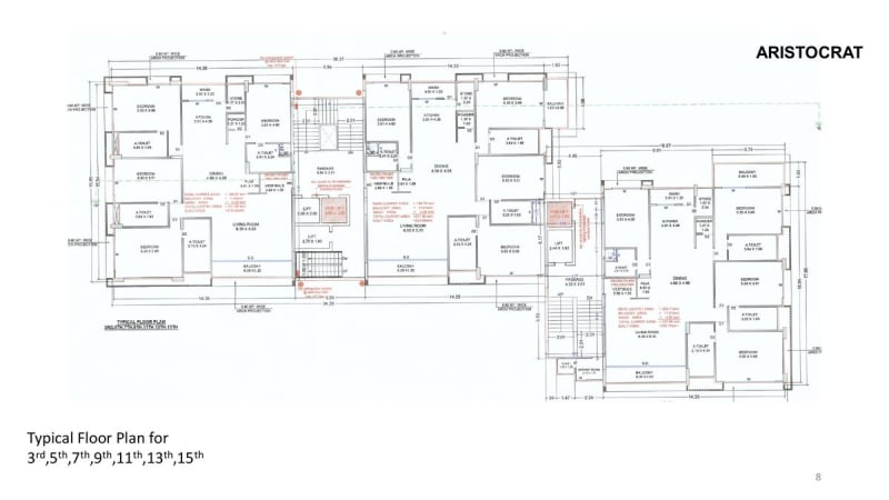
Aristocrat is a residential/group housing real estate project developed by Polarisian Palace Llp, strategically located at Moje: Bharthana-vesu, Taluka : Majura,, Dist: Surat, Surat, 395007. This RERA-registered property (Registration No: PR/GJ/SURAT/SURAT CITY/Surat Municipal Corporation/RAA16581/100326/311230). Residential Flats
The project is professionally designed by Sanjay Riddhishankar Joshi and engineered by Darshit Bharatkumar Vejani, ensuring quality construction and adherence to all regulatory standards. For more information about this property, interested buyers can contact Polarisian Palace Llp directly at 9979711333.

















